













House and Land - Families and Investors
From $1,399,000
Lot 316, Marsden Cove Marina
Section size 875㎡
House size 282㎡
- Beds6
- Bathrooms3
- Receptions2
- Parking3
or email stevecunis@signature.co.nz
Visit Signature Homes Northland
Enquire about this Package
House and Land - Families and Investors
Lot 316, Marsden Cove Marina
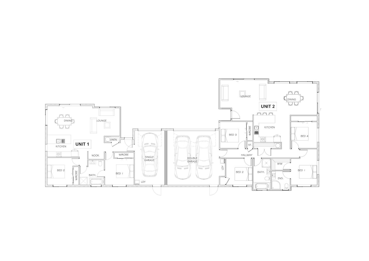
This Signature Homes House & Land package offers a superb chance for families and/or investors to build in a very desirable area of Northland. The 875m² site provides space and opportunity for two self-contained homes for those with an eye to the future.
The house design includes two floorplans on the one site, both adjoining and self-contained. The first dwelling includes four bedrooms, two bathrooms and a double garage (171m²). The other has two bedrooms, one bathroom and a single garage (111m²). There are north facing living and dining areas in both floorplans, providing all day sun and relaxed coastal living.
This type of concept is perfect for those wanting home and income, investors, extended families, syndicates, or business partners working within joint ventures. Contact our expert team here at Signature Homes Northland today, and let’s discuss this perfect opportunity for setting yourself up for the future.
Local Amenities to the One Tree Point:
- Walking distance to beaches, café’s, restaurants, medical centre, pharmacy, supermarket, hairdresser, local primary school and early childhood centre, fishing club, bowls club. Short drive to numerous other amenities.
Package includes
- Signature Homes market-leading Building Guarantees
- Your choice of internal and external colours
- Fixed Price Guarantee
Floorplans: House and Land - Families and Investors




Location
Lot 316, Marsden Cove Marina
