



















Golden Bay House & Land Package - Lot 1 - Three Options
From $727,175
Meihana Street, Takaka
House size 137㎡
- Beds3
- Bathrooms2
- Receptions1
- Parking1
or email nelson@signature.co.nz
Visit Signature Homes Nelson & Tasman
Enquire about this Package
Golden Bay House & Land Package - Lot 1 - Three Options
Meihana Street, Takaka
Your Dream Home Awaits - Modern, Connected Living in Golden Bay
Welcome to a home where ease, beauty, and connection converge. This thoughtfully designed house in the heart of Golden Bay offers a perfect balance of modern comfort and timeless functionality. The open-plan layout invites abundant natural light, creating a warm and welcoming atmosphere. Sliding doors open to a private deck, seamlessly extending your living space into the outdoors—ideal for relaxing in the sun or entertaining guests. With every detail crafted to inspire and uplift, this home provides an exceptional living experience, blending style and practicality in perfect harmony.
Nestled alongside planned parklands and surrounded by a welcoming co-housing community and community gardens nearby. With schools, shops, and beaches all within reach, this is coastal living at its finest—a rare chance to embrace harmony and convenience in one remarkable location.
Make this exceptional home your own and begin the next chapter of your life today!
Available Now: Lot 1
- 2 Bedroom with carport (96.23m²)- From $727,175
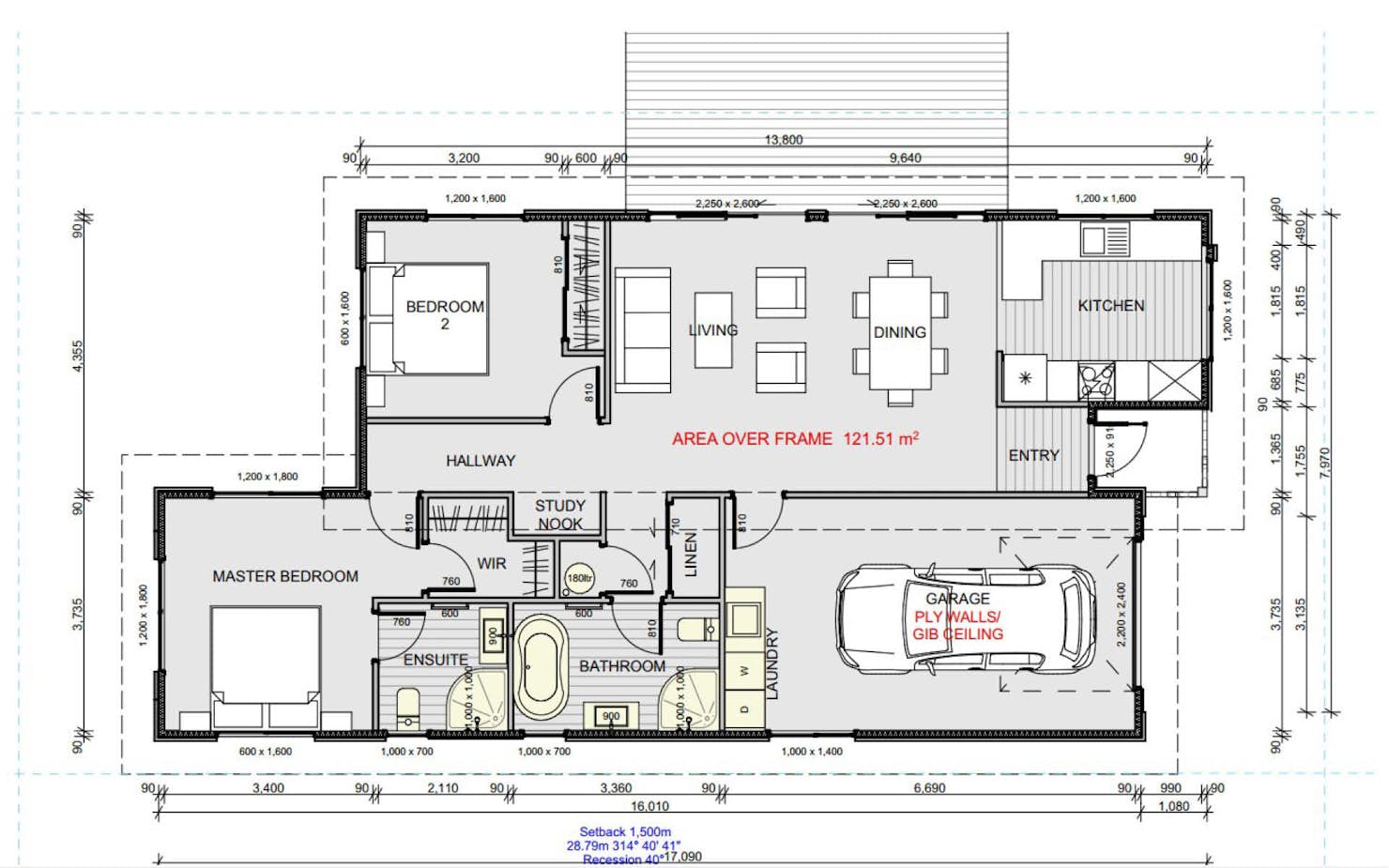
- 2 Bedroom with garage (121.51m²) - From $778,925
- 3 Bedroom with garage (137.23m²) - From $834,925
The Home:
Layout:
- Welcoming spacious separate entrance
- Modern, bright kitchen featuring custom shelving by Respace and designer finishes by Bays Joinery
- Quality appliances by Smeg or Fisher & Paykel
- Open-concept living and dining areas, perfect for entertaining
- The house is positioned to maximise the private garden area
Exterior:
- Private deck and garden area, ideal for outdoor relaxation and gatherings
Sustainable Design & Quality Craftsmanship.
Each home is built with locally sourced, eco-friendly materials for energy efficiency and sustainability:
- Insulated BC1 slab foundation
- Natural Hempcrete and Macrocarpa cladding with a durable finish
- Thermal Heart Joinery and Low-E glass for optimal energy savings
- Non-toxic materials: Terra Lana insulation, LED lighting, wool carpet, and locally made natural paints
Package includes
- Signature Homes market-leading Building Guarantees
- Your choice of internal and external colours
- Fixed Price Guarantee
Floorplans: Golden Bay House & Land Package - Lot 1 - Three Options








Location
Meihana Street, Takaka
